Private Event Rentals
Harry P. Leu Gardens is one of Orlando’s premier venues for social and corporate events, offering a modern and elegant banquet facility inside the Welcome Center. Perfect for birthdays, meetings, and intimate gatherings, this versatile location provides spacious rooms of varying sizes, all surrounded by the lush beauty of the gardens and the scenic shores of Lake Rowena.
The Welcome Center’s private event rental facilities can be customized for dinners, meetings, receptions, and more, ensuring a seamless event experience that blends comfort and nature. Whether you’re hosting a professional gathering or a special celebration, this serene setting delivers a sophisticated yet tranquil ambiance in the heart of downtown Orlando.
Rental Fees (Base Rate includes 4 hours. Private rentals available from 8 a.m. – 10 p.m.)
|
Capacity |
Friday – Sunday |
Monday – Thursday |
Additional Hours |
| Camellia Room |
180 |
$2,500 |
$800 |
$200/hour |
| Magnolia Room |
50 |
$1,750 |
$500 |
$125/hour |
| Rose Room |
30 |
$1,500 |
$400 |
$100/hour |
| Conference Room |
14 |
$375 |
$200 |
$50/hour |
Private Event Rental Details
Request Availability
Are you ready to save the date? Please submit an inquiry to connect with our Wedding & Rental Coordinator.
Contact Us
Book Your Event
We recommend booking in advance, as dates fill up quickly. We are happy to place a complimentary five-day hold for you, after which time we request a deposit and signed contract. We require a 50% deposit of the rental fee at the time of contract, with the balance due at least 30 days prior to the event. Payments may be made in cash, check, Mastercard, Visa, Discover or American Express. The Gardens may cancel a reservation and/or contract if fees are not paid on time.
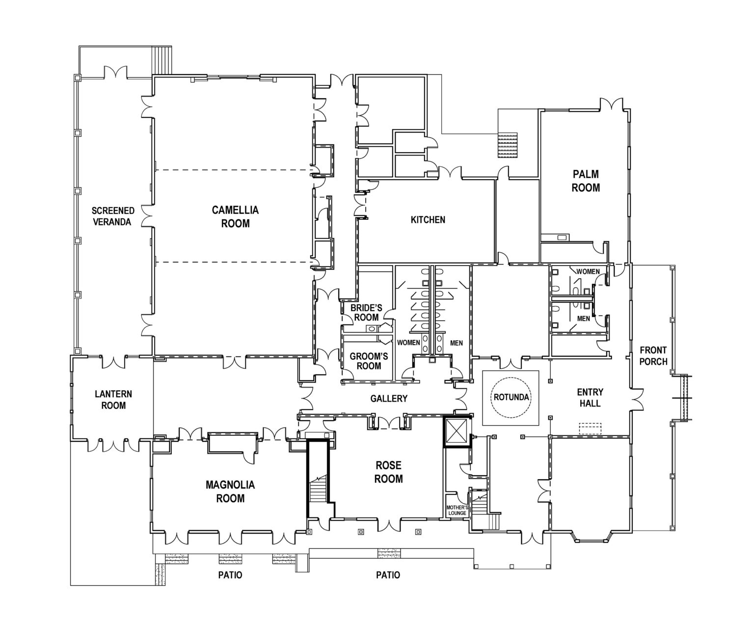
Floor Plan

| Rooms |
Dimensions (ft) |
|
|
Capacity |
|
|
|
Width |
Length |
Height |
Banquet |
Theater |
Classroom |
| Camelia Room |
48 |
78 |
14 |
180 |
180 |
100 |
| Magnolia Room |
24 |
48 |
11 |
40 |
65 |
28 |
| Rose Room |
24 |
28 |
11 |
20 |
25 |
12 |
| Conference Room |
14 |
28 |
11 |
N/A |
14 |
N/A |
Required Caterers
Catering and alcohol services for all weddings and private event rentals must be coordinated through one of the Gardens dedicated caterers below:
Big City Catering - bigcitycatering.com | 407.438.3488
CB Catering - cb-catering.com | 321.229.5786
Char-Don Catering - char-doncatering.com | 407.841.3519
Cuisiniers - cuisinierscater.com | 407.975.8763
Dubsdread Catering - eventsbydusdread.com | 407.650.9558
John Michael’s - johnmichaelsevents.com | 4074.894.6671
Monica’s Comfort Foods - monicascomfortfoods.com | 407.283.4970
Puff’n Stuff - puffnstuff.com | 407.629.7833
Event Insurance
Harry P. Leu Gardens is owned and operated by the City of Orlando which requires all private events obtain a “Certificate of Insurance” reflecting coverage for bodily injury and property damage. This may be obtained through Harry P. Leu Gardens and the fee is based on the number of event attendees.
Rental FAQs
Do I need an appointment to view the facility?
You do not need an appointment if you would like to view the rental rooms in Garden House. We do suggest you call first to be sure the room is not in use when you come to visit.
How far in advance do you take reservations?
Leu Gardens reserves up to one year in advance. Due to Special Events, there are dates throughout the year that will not be unavailable.
May I bring my own caterer?
No, you must use one of the gardens approved caterers, all listed on our website.
Is alcohol permitted?
Yes, beer, wine and alcohol are permitted. Alcohol must be served by your caterer, as outside bartenders are not permitted. No Cash Bars.
Can I extend the hours of rental?
Rental hours are a specific four-hour time block only. The four-hour time block is for weekends and evenings. (Daytime hours are different) Your caterer will arrive 1 to 1-1/12 hours prior to your designated start time and has one hour after your event ends to clean up the room.
May I bring my items the day prior to my event?
The Gardens has back-to-back events and has no storage available. You may bring your items in after your caterer is set up and remove them after your event ends.
Is the Screened Veranda included in the Camellia room rental?
The Screened Veranda is part of the Camellia room rental, however music and noise are not permitted outside. You may use the Veranda for your bar, cocktail tables or hors-d'œuvres.
May I use the Lantern Room?
The Lantern Room is not rentable space. You may place one or two registration tables or an easel in the Lantern Room, no food or beverage.